Domov
O mne
Projekty
Kontakt
Menu
Domov
O mne
Projekty
Kontakt
Domov
O mne
Projekty
Kontakt
Menu
Domov
O mne
Projekty
Kontakt
Späť
Späť
Predošlý projekt
Ďalší projekt
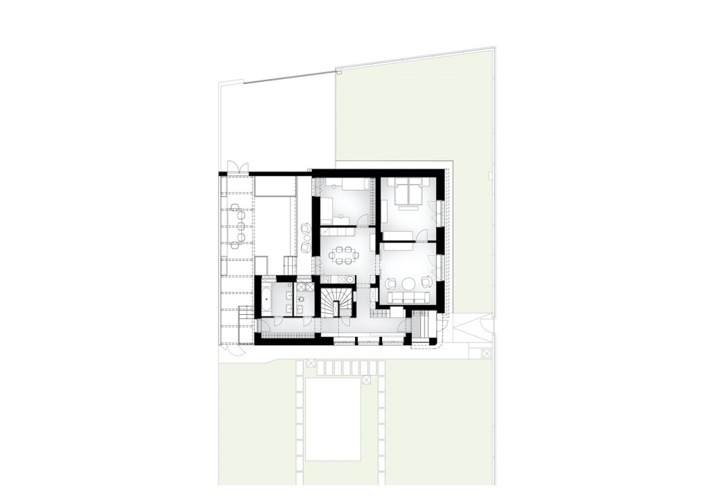
13_RD Rekonštrukcia domu v Trnave
Rekonštrukcia domu v Trnave sa pri stavbe zmenila zo dňa na deň na demoláciu a novostavbu. Klient bol však stotožnený s dispozíciou pôvodného domu, ktorá na malé výnimky kopírovala prevádzku z 50. rokov a vznikol „nový dom so starými maniermi“.
with Lukáš Pohuba | 2020-2021 | 227 sqm
ZOBRAZIŤ GALÉRIU PROJEKTU
10_OV Tančiareň
14_INT Rekonštrukcia podkrovia na byty na Trnavskom mýte
Viac Projektov
58_SÚŤAŽ Čajkovského
46_Interiér Alfa Office
47_RD Kysuce
05_INT Byt s výhľadom