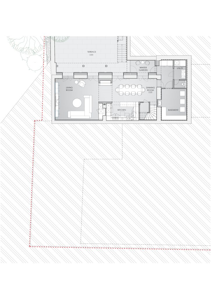
03_RD_INT Prestavba domu pri jazere

Dostavba a rekonštrukcia rekreačného domu z 90. rokov pri Bratislave. Spoznávaním klienta sa z pôvodne rustikálneho domu stalo skôr luxusný interiér víkendového sídla. Pôvodná hmota domu je osadená v svažitom teréne tak, aby vznikli dve nádvoria – jedno s bazénom a druhé plynule precháduajúce k pláži jazera.
with PERFORMA ARCHITECTS | Wood&Interiers | Elitebath | 2019-2021 | 455 sqm