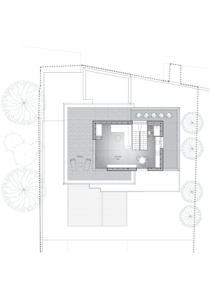
Dostavba a nadstavba rodinného domu zo 60. rokov v Starom meste Bratislavy. Požiadavkou bolo vytvoriť samostatne fungujúcu časť domu bez potreby napojenia na súčasnú dispozíciu, kde nová architektúra vrastá do pôvodnej. Členenie hmoty a materiálov zachováva mierku domu.