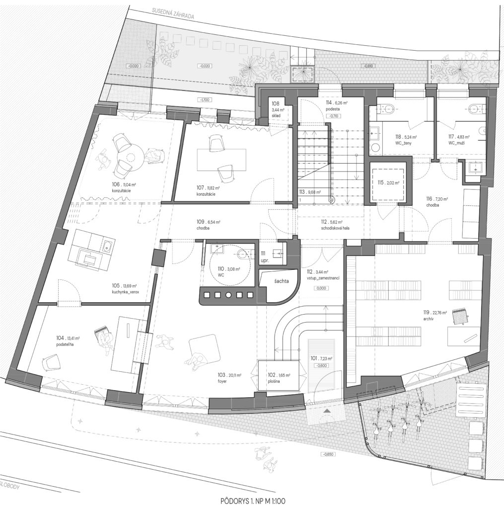
Ideu rekonštrukcie Úradu na ochranu oznamovateľov protispoločenskej činnosti plne vystihuje pojem transparentnosť. A to v každom smere práve kvôli povahe zadania a objednávateľa. Transparentnosť osciluje v dvoch rovinách – ako transparentnosť doslovná /literal/
a feonmenálna /phenomenal/. | 5.-6. miesto |